• 667246535/2018-00149
  • 新郑市规划发展服务中心
  • 城市规划
  • 2018-06-25
  • 2018-06-25
  • 2018-06-25
  • 2018-07-06
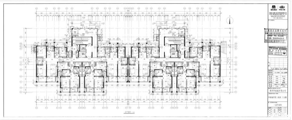
郑州华南城有限公司建设工程规划许可证批前公示

由郑州华南城有限公司建设的项目,现正在我局办理建筑审批手续,根据有关法律、法规和《河南省城市规划公示制度》的要求,现予以公示: 附图:总平面图、日照分析、鸟瞰图、平、立面图 该项目公示期为2018年6月25日—2018年7月6日,如有意见或建议,请于公示期内向新郑市规划发展服务中心建管科反馈。 咨询电话:0371—69950010 经办科室:新郑市规划发展服务中心建管科 新郑市规划发展服务中心信访意见电话:0371---69953598

主办单位:星空平台app官方 地址:新郑市人民路186号 邮编:451100
Baidu
map