繁體
登录
667246535/2018-00311
新郑市规划发展服务中心
城市规划
2018-11-21
2018-11-21
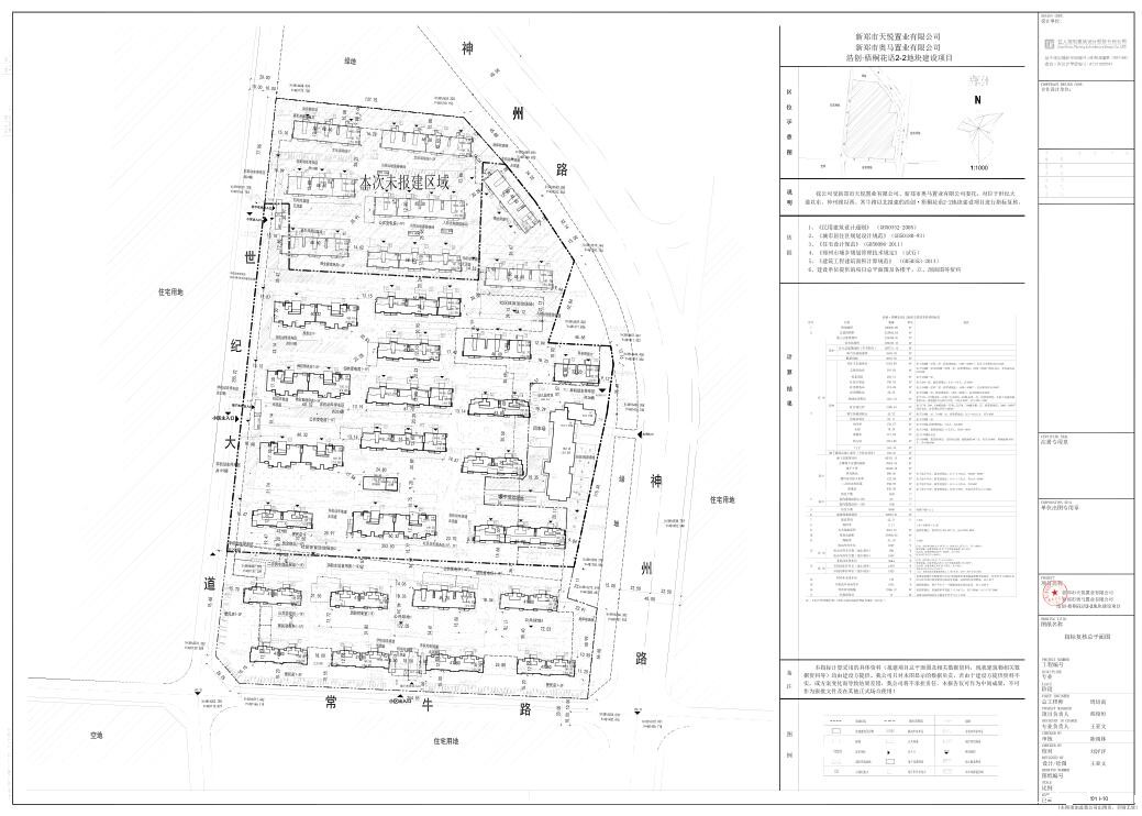
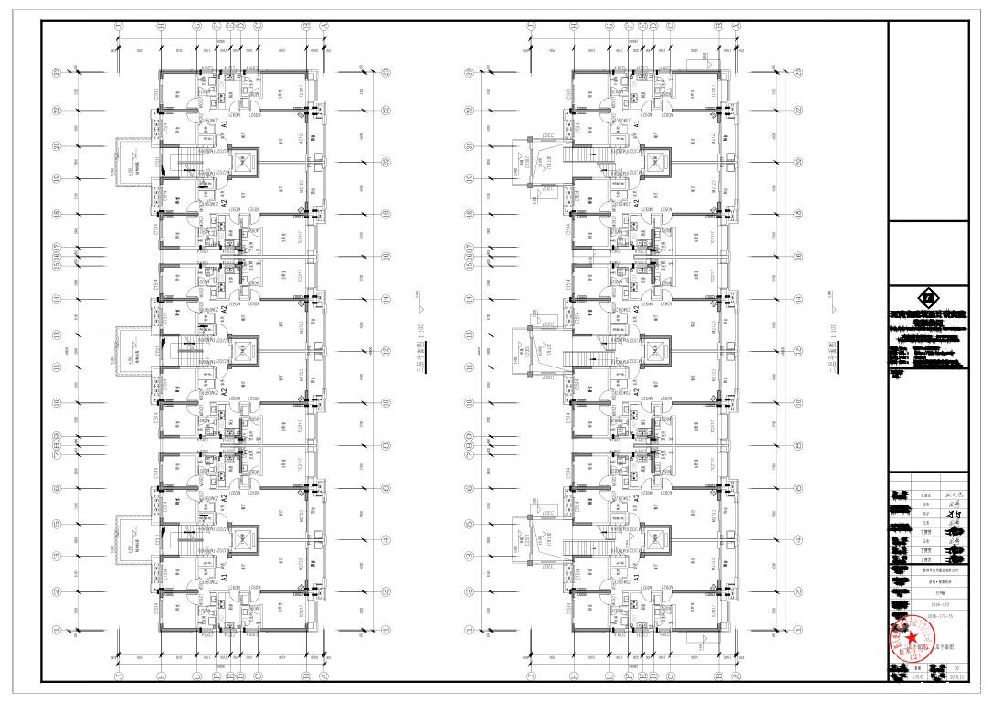
新郑市天悦置业有限公司、新郑市奥马置业有限公司建设工程规划许可证批前公示
由新郑市天悦置业有限公司、新郑市奥马置业有限公司建设的项目,现正在我局办理建筑审批手续,根据有关法律、法规和《河南省城市规划公示制度》的要求,现予以公示:附图:总平面图、鸟瞰图、平、立图 该项目公示期为2018年11月21日—2018年12月4日,如有意见或建议,请于公示期内向新郑市规划发展服务中心反馈。 新郑市规划发展服务中心信访意见电话:0371---69953598
主办单位:星空平台app官方
地址:新郑市人民路186号
邮编:451100
网站标识:4101840001
豫ICP备05015077号-1
豫公网安备 41018402000166号
map